店舗・テナント 戻る現地案内図トップページへ
名 称    篠原貸店舗 種 別    貸店舗 物件番号 03-544
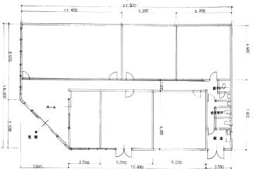
所在地   徳島県阿波市土成町土成字南原 タイプ    号 数 号室
建物構造  鉄骨造鋼板葺平家建        賃 料 280,000円 共益費    0円
間 取     敷 金    560,000円 礼 金 280,000円
建築年       1992年 専有面積  318.07㎡ 駐車場    月        円 報 酬    1ヶ月
設 備    浄化槽24人槽 備 考    敷地851.53㎡・県道鳴門池田線沿・賃料相談
消費税(別)





◎間取図の上ををクリックで拡大閲覧◎















徳島ネット不動産情報…幸徳不動産